Trilocale ristrutturato Centro storico

365.000,00 €

Parma – Centro Storico

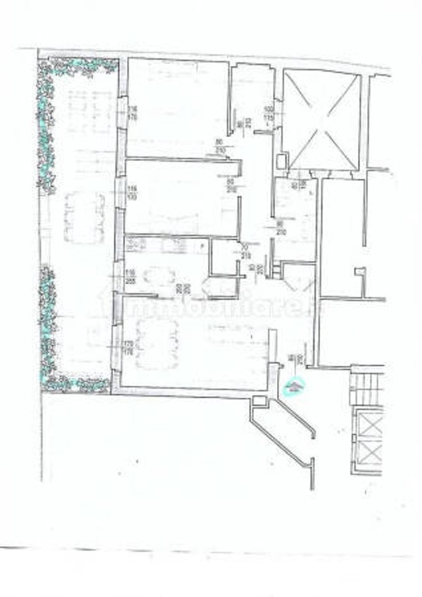
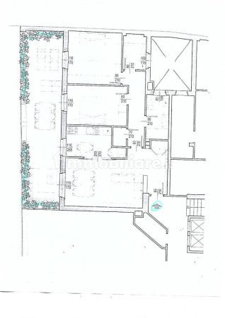
Charme, spazio e luce a due passi da tutto Nel cuore più autentico di Parma, nascosto tra le vie eleganti del centro storico, questo appartamento di circa 120 mq è una vera rarità. Ristrutturato di recente e arredato con stile, unisce la solidità dell’architettura classica al comfort moderno, offrendo una casa pronta da vivere. L’ingresso apre su un ampio soggiorno luminoso, uno spazio accogliente dove convivono armoniosamente relax e convivialità. La cucina, separata e perfettamente attrezzata, è pensata per chi ama cucinare senza rinunciare all’estetica. La zona notte è composta da due camere matrimoniali, silenziose e ben proporzionate, servite da due bagni eleganti, rifiniti con materiali contemporanei. Ma il vero protagonista è il grande terrazzo: un angolo all’aperto introvabile in centro storico, perfetto per una cena tra amici, un aperitivo al tramonto o semplicemente per vivere la città da una prospettiva più intima e verde. Completano la proprietà una comoda cantina e un contesto tranquillo, riservato, ma a pochi passi da tutto: piazze, boutique, ristoranti, teatri. L’atmosfera è quella di una Parma che vive a misura d’uomo, tra eleganza, cultura e qualità della vita. Una casa pensata per chi cerca più di un semplice appartamento: uno spazio vero, con carattere e anima, nel cuore pulsante della città.